Q947H 电动固定式硬密封球阀

Q947F电动固定式球阀是以电源电压作动力,接受(4-20mA、0-10mA或1-5VDC)电流信号或电压信号,即可控制运转,以角行程输出的扭矩转动球体0~90°,就能完成启闭动作或调节动作。
全电子式电动执行机构,采用机电一体化结构,具有机内伺服操作和开度信号位置反馈、位置指示、手动操作等功能,连线简单,通过输入电流信号或电压信号,改变球芯的旋转角度(0-90°任意角度),实现比例调节动作。
1、电动固定式球阀球阀采用固定球设计,相对运动部位均采用磨擦系数小自润滑材料,因而操作扭矩小,密封润滑脂的长期密封,使得操作灵活。
2、电动固定式球阀采用高平台结构,ISO5211连接标准,电/气动执行器。
3、电动固定式球阀采用全通径设计,流通阻力小。
4、金属硬密封固定式球阀采用双向金属可动密封结构,具有自动补偿及自洁功能,密封性能优。
5、电动固定式球阀采用固定球设计,并增加了预紧力弹簧。
6、每个球阀都有两个可动密封座,两个方向能密封,因而安装时不须考虑介质的流向。
7、具有防火防静电结构,在阀杆与阀体及阀杆与球体之间设置导电弹簧,避免静电打火点燃易燃介质。
8、耐火结构双重保护,球阀的密封部位能形成金属对金属的硬密封结构。

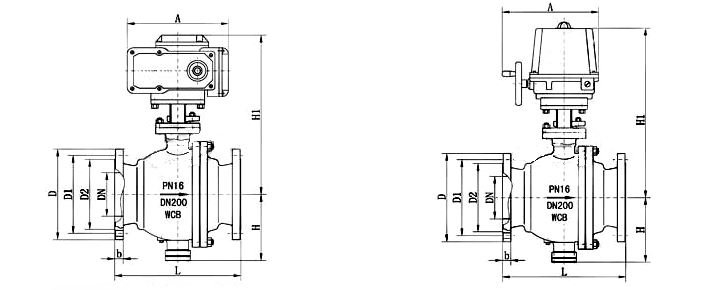
公称通径 DN(mm) | 50 | 65 | 80 | 100 | 125 | 150 | 200 | 250 | 300 | 350 | 400 | 500 | 600 | 700 | |
L | 130 | 140 | 150 | 165 | 180 | 200 | 220 | 250 | 280 | 320 | 360 | 400 | 630 | 750 | |
H | - | - | - | - | - | - | 335 | 385 | 430 | 470 | 590 | 700 | 780 | 950 | |
H1 | 配DSR | 根据所配执行机构而定,配置执行器不同,连接尺寸也不同 | |||||||||||||
配PSQ | |||||||||||||||
A | |||||||||||||||
D | 165 | 185 | 200 | 220 | 250 | 285 | 340 | 405 | 460 | 520 | 580 | 705 | 840 | 910 | |
D1 | 125 | 145 | 160 | 180 | 210 | 240 | 295 | 355 | 410 | 470 | 525 | 650 | 770 | 840 | |
D2 | 99 | 118 | 132 | 156 | 184 | 211 | 266 | 319 | 370 | 435 | 485 | 608 | 718 | 788 | |
n-φd | 4-18 | 4-18 | 8-18 | 8-18 | 8-18 | 8-22 | 12-22 | 12-26 | 12-26 | 12-26 | 12-30 | 12-34 | 12-41 | 12-41 | |
1、电动固定式球阀球阀采用固定球设计,相对运动部位均采用磨擦系数小自润滑材料,因而操作扭矩小,密封润滑脂的长期密封,使得操作灵活。
2、电动固定式球阀采用高平台结构,ISO5211连接标准,电/气动执行器。
3、电动固定式球阀采用全通径设计,流通阻力小。
4、金属硬密封固定式球阀采用双向金属可动密封结构,具有自动补偿及自洁功能,密封性能优。
5、电动固定式球阀采用固定球设计,并增加了预紧力弹簧。
6、每个球阀都有两个可动密封座,两个方向能密封,因而安装时不须考虑介质的流向。
7、具有防火防静电结构,在阀杆与阀体及阀杆与球体之间设置导电弹簧,避免静电打火点燃易燃介质。
8、耐火结构双重保护,球阀的密封部位能形成金属对金属的硬密封结构。
主要技术参数:
·阀体
阀体形 | 两段式铸造阀体 |
公称通径 | DN50~1000mm |
公称压力 | PN1.6、2.5、4.0、6.4、10.0 MPa;ANSI 150 300 600 900 LB;JIS 10 20 30 40 K |
连接形式 | 法兰式 |
法兰标准 | JIS、ANSI、GB、JB、HG等 |
阀盖形式 | 一体式 |
压盖型式 | 螺栓压紧式 |
密封填料 | V型聚四氟乙烯填料、含浸聚四氟乙烯石棉填料、石棉纺织填料、石墨填料 |
·阀内件
阀芯形式 | O型固定球型阀芯 |
流量特性 | 近似快开型 |
执行机构:
执行器型号 | DSR、3810R、DZW、HQ、PSQ电动执行机构 |
主要技术参数 | 电源电压:220V/50Hz、380V/50Hz、输入信号:4-20mA或1-5V·DC、输出信号:4-20mA·DC |
防护等级:相当IP65(或IP67)、隔爆标志:ExdⅡBT4、手操功能:手柄 | |
环境温度:-25~+70℃、环境湿度:≤95% |
※注:如需详细执行器参数,请进入电动执行器页面进行查阅。
主要零件材料:
1 | 底座 | WCB、CF8、CF8M、CF3M |
2 | 左阀体 | WCB、CF8、CF8M、CF3M |
3 | 下阀轴 | 2Cr13、304、316、316L |
4 | 右阀体 | WCB、CF8、CF8M、CF3M |
5 | 球体 | 2Cr13、304、316、316L |
6 | 密封圈 | PTFE、PPL、304、316、316L |
7 | 弹簧 | 65Mn、不锈钢 |
8 | 销 | 25、35、45 |
9 | 上阀轴 | 2Cr13、304、316、316L |
10 | 支架 | WCB、CF8、CF8M、CF3M |
11 | 填料压板 | WCB、CF8、CF8M、CF3M |
12 | 执行器 | 根据执行器厂家提供配置 |
性能指标:
公称通径 DN(mm) | 50 | 65 | 80 | 100 | 125 | 150 | 200 | 250 | 300 | 350 | 400 | 450 | 500 | 600 | 700 | 800 | 900 | 1000 |
允许压差(MPa) | ≤公称压力 | |||||||||||||||||
动作范围 | 0~90°、0~360° | |||||||||||||||||
泄露量Q | 按GB/T4213-92,小于额定KV0.01% | |||||||||||||||||
基本误差 | ±1% | |||||||||||||||||
回差 | ±1% | |||||||||||||||||
死区 | ≤1% | |||||||||||||||||
性能参数:
试验压力(Mpa) | 公称压力(Mpa) | 压力级(class) | JIS(Mpa) | |||||||
1.6 | 2.5 | 4.0 | 6.4 | 10.0 | 150 | 300 | 600 | 10K | 20K | |
强度试验 | 2.4 | 3.8 | 6.0 | 9.6 | 15.0 | 3.1 | 7.8 | 15.3 | 2.4 | 3.8 |
密封试验 | 1.8 | 2.8 | 4.4 | 7.0 | 11.0 | 2.2 | 5.6 | 11.2 | 1.5 | 2.8 |
气密试验 | 0.5~0.7 | |||||||||